| Под ключ (с отделкой) | 6х6 | Профилированный 140х140 мм | 1471600 | Заказать |
| Под ключ (с отделкой) | 6х6 | Профилированный 190х140 мм | 1621600 | Заказать |
| Под усадку (без отделки) | 6х6 | Cруб дома 140х140 мм | 971600 | Заказать |
| Под усадку (без отделки) | 6х6 | Cруб дома 190х140 мм | 1121600 | Заказать |
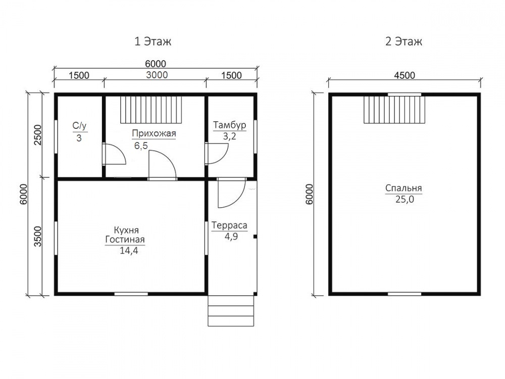
| Площадь застройки: | 36 м2 | |
| Длина: | 6 м | |
| Ширина: | 6 м | |
| Общая площадь: | 50.61 м2 | |
| Под ключ (с отделкой) | Под усадку (без отделки) | |
| Фундамент | Свайно-винтовой или ж/б сваи (рассчитываются отдельно). | |
| Гидроизоляция фундамента | Рубероид в два слоя. | |
| Основание (обвязка) | Из обрезного бруса (100х150 мм. 150х150 мм. 150х200 мм. согласно выбранному сечению бруса). Обработка антисептиком. | |
| Количество рядов основания | 2 | 2 |
| Цокольное перекрытие | Обрезной брус камерной сушки 100х150/50х200 мм. с шагом 600 мм. Обработка антисептиком. | Обрезной брус естественной влажности 100х150/50х200 мм. с шагом 600 мм. Обработка антисептиком. |
| Пол черновой | Обрезная доска камерной сушки 20х100 мм. | Обрезная доска естественной влажности 20х100 мм. |
| Внешние стены |
Профилированный брус камерной сушки, сечением 90х140/140х140/190х140 мм. по выбранной комплектации.
Два вида профиля: 1. С двух сторон, прямой со снятой фаской. 2. Снаружи под «блок- хаус», внутри прямой. Высота сруба: Сруб одноэтажный- 18 венцов Сруб с мансардой- 18 венцов Сруб в 1,5 этажа- 18 венцов, далее каркас с внешней отделкой имитацией бруса. Сруб в 2 этажа- 37 венцов |
Профилированный брус естественной влажности, сечением 90х140/140х140/190х140 мм. по выбранной комплектации.
Два вида профиля: 1. С двух сторон, прямой со снятой фаской. 2. Снаружи под «блок- хаус», внутри прямой. Высота сруба: Сруб одноэтажный- 18 венцов Сруб с мансардой- 18 венцов Сруб в 1,5 этажа- 18 венцов, далее каркас с внешней отделкой имитацией бруса. Сруб в 2 этажа- 37 венцов |
| Межвенцовый утеплитель | Джут (льноджутовое полотно). | Джут (льноджутовое полотно). |
| Перегородки 1-го этажа | Профилированный брус камерной сушки, сечением 90х140 мм. | Профилированный брус естественной влажности, сечением 90х140 мм. |
| Перегородки 2-го этажа | Каркасные: доска камерной сушки 40х100 мм, обшитые евровагонкой хвойных пород, камерной сушки, толщиной 12,5 мм. сорт «АВ» (дома с мансардой и в 1,5 этажа). Брусовые: профилированный брус камерной сушки, сечением 90х140 мм. (дома двухэтажные). | Каркасные: доска естественной влажности 40х100 мм. (дома с мансардой и в 1,5 этажа). Брусовые: профилированный брус естественной влажности, сечением 90х140 мм. (дома двухэтажные). |
| Сборка сруба | Берёзовый нагель. | Берёзовый нагель. |
| Соединение углов сруба | «Тёплый угол» (коренной шип). | «Тёплый угол» (коренной шип). |
| Высота от пола до потолка |
Сруб одноэтажный: 2,4 м. (18 венцов)
Сруб с мансардой: 1-ый этаж- 2,4 м. (18 венцов) 2-ой этаж (мансарда)- 2,3 м. Сруб в полтора и два этажа: 1-ый этаж 2,4 м ±4 см. (18 венцов) 2-ой этаж 2,4 м ±4 см. каркасные аттиковые стены (боковые) высотой 1,5 м. в полутораэтажном доме 2,4 м ±4 см (поднят брусом на 18 венцов) в двухэтажном доме. |
Сруб одноэтажный: 2,5 м. (18 венцов)
Сруб с мансардой: 1-ый этаж- 2,5 м. (18 венцов) 2-ой этаж (мансарда)- 2,4 м. Сруб в полтора и два этажа: 1-ый этаж 2,5 м ±4 см. (18 венцов) 2-ой этаж 2,5 м ±4 см. каркасные аттиковые стены (боковые) высотой 1,5 м. в полутораэтажном доме 2,5 м ±4 см (поднят брусом на 18 венцов) в двухэтажном доме. |
| Утепление (пол, потолок, мансарда) | Минеральная вата Knauf 150 мм. | Отсутствует. |
| Пароизоляция (пол, потолок, мансарда) | Ондутис R70. | Отсутствует. |
| Пол чистовой | Шпунтованная доска камерной сушки толщиной 36 мм. сорт АВ. по рейке 20х40 мм. либо шпунтованная ДСП 16 мм. по разряженной обрешётке из обрезной доски камерной сушки 20х100 мм. | Отсутствует. |
| Потолки | Евровагонка камерной сушки толщиной 12,5 мм. сорт АВ. | Отсутствует. |
| Окна | Деревянные, двойного остекления. | Отсутствуют. |
| Двери | Входная- металлическая, утеплённая (Россия). Межкомнатные- филёнчатые. | Отсутствуют. |
| Наличники на окна и двери | Наличник деревянный, строганый, камерной сушки 70-90 мм. | Отсутствует. |
| Шиповка оконных и дверных проёмов (ройки) | Да. | Отсутствует. |
| Лестница (при наличии второго этажа) | Деревянная, одно или двухмаршевая. Перила- заводские резные, балясины- заводские точеные, устанавливаются стартовые точёные столбы. Ступени 40х200 мм. Тетива лестницы- 90х140 мм. | Отсутствует. |
| Крыша | Двускатная, ломаная или вальмовая в соответствии с проектом. | Двускатная, ломаная или вальмовая в соответствии с проектом. |
| Стропильная система | Выполнена из обрезной доски камерной сушки 40х150 мм. Шаг установки стропильных ног 600 мм. | Выполнена из обрезной доски естественной влажности 40х150 мм. Шаг установки стропильных ног 600 мм. |
| Обрешётка | Выполняется из обрезной доски камерной сушки толщиной 20-22 мм. Шаг крепления обрешетки 300 мм. Контробрешётка выполняется из бруска камерной сушки 40х50 мм. Крепится по стропильным ногам (вентиляционный зазор). | Выполняется из обрезной доски естественной влажности толщиной 20-22 мм. Шаг крепления обрешетки 300 мм. Контробрешётка выполняется из бруска естественной влажности 40х50 мм. Крепится по стропильным ногам (вентиляционный зазор). |
| Подкровельная мембрана | Ондутис А100 | Ондутис А100 |
| Кровельное покрытие (на выбор) | Ондулин, Черепица Ондулин. | Ондулин, Черепица Ондулин. |
| Фронтоны (при наличии) | Каркас из обрезной доски камерной сушки 40х150 мм. Обшиваются вагонкой камерной сушки толщиной 16 мм. сорт АВ по контррейке 20х40 мм. (вентиляционный зазор). Влаго-ветрозащита Ондутис А100. Монтаж вентиляционных решёток. | Каркас из обрезной доски естественной влажности 40х150 мм. Обшиваются вагонкой камерной сушки толщиной 16 мм. сорт АВ по контррейке 20х40 мм. (вентиляционный зазор). Влаго-ветрозащита Ондутис А100. Монтаж вентиляционных решёток. |
| Свесы крыши | Ширина 400 мм. Подшиваются вагонкой камерной сушки, сорт АВ. | Ширина 400 мм. Подшиваются вагонкой камерной сушки, сорт АВ. |
| Терраса/балкон (при наличии) | Устанавливаются опорные столбы из строганного бруса камерной сушки 140х140 мм. с компенсационными болтами под усадку. | Устанавливаются опорные столбы из строганного бруса естественной влажности 140х140 мм. с компенсационными болтами под усадку. |
| Отделка потолка террасы/балкона | Евровагонка камерной сушки толщиной 12,5 мм. сорт АВ. | Отсутствует. |
| Пол террасы/балкона | Шпунтованная доска камерной сушки толщиной 36 мм. сорт АВ. | Отсутствует. |
| Ограждение террасы/балкона | Перила- строганая доска. Балясины- точеные, фигурные. Либо ограждение в скандинавском стиле. Устанавливаются ступени у входа. | Отсутствует. |
| Допуск на геометрические параметры сруба | Составляет +/- 50 мм по длине с каждой стороны. | Составляет +/- 50 мм по длине с каждой стороны. |
| Допускается стыковка бруса, вагонки и половой доски | По всему периметру стен дома (если ширина и длина дома более 6,0 метров). Вагонки и доски пола в каждой отдельной комнате. | По всему периметру стен дома (если ширина и длина дома более 6,0 метров). |
| Допуски по брусу, доске | +/- 5 мм. | +/- 5 мм. |
| В стоимость включена | Доставка комплекта материала в радиусе 500 км. от г. Пестова Новгородской области и сборка дома на вашем участке. | Доставка комплекта материала в радиусе 500 км. от г. Пестова Новгородской области и сборка дома на вашем участке. |
| Гарантия | 5 лет. | 2 года. |
| Бытовка строительная 2,0х3,0 м. каркасно-щитовая. | Стоимость 23000 руб. Остаётся на участке Заказчика. | Стоимость 23000 руб. Остаётся на участке Заказчика. |
| Туалет 1,0х1,0 м. каркасно-щитовой. | Стоимость 12000 руб. Остаётся на участке Заказчика. | Стоимость 12000 руб. Остаётся на участке Заказчика. |
| Генератор | Стоимость аренды на весь срок строительства 10000 руб. ГСМ за счёт Заказчика. | Стоимость аренды на весь срок строительства 10000 руб. ГСМ за счёт Заказчика. |
Строительство деревянных домов выполняется в 2-х вариантах: сразу под ключ и под усадку, когда дом отстаивается в течение некоторого времени.
В зимнее время года желательно строить из зимнего леса, в летнюю пору - из сухого бруса (дерева камерной сушки).
Наиболее подходящими для дачи или сада стали дома на винтовых сваях, в нашем каталоге присутствуют одноэтажные и полуторатажные виды домов.
Для постоянного проживания, советуем очень теплые одноэтажные и двухэтажные дома на ленточных и плитных фундаментах.
Имеется несколько размеров профилированного бруса: 140х140 мм и 190х140 мм. Дома из вертикального бруса строятся из бруса 140х190 мм.
Проект 11 полутораэтажного дачного дома с общей площадью 50.61 кв.м. отличается практичностью и красивым внешним видом. Размер дома – 6х6 м. – позволяет получить комфортное место отдыха или проживания для небольшой семьи.
Высота потолков первого этажа составляет 2,45 м. Все окна в доме размером 1х1,2м имеют двойное остекление. В качестве перегородок используется профилированный брус 100х150 мм.
Проект дома предусматривает двускатную крышу с ондулиновым покрытием, препятствующим налипанию снега, и опорно-столбчатый фундамент, который является залогом долговечности строения. В качестве утеплителя выбран теплоизоляционный материал URSA 50 мм., парогидроизоляции – ондитус R70.
Колоритный экстерьер и аккуратность данного проекта сделают ваш дачный дом настоящим украшением участка в Мурманске, а благоприятный микроклимат создаст уютную атмосферу для всей семьи!
Компания «Дача из бруса» качественно и в короткий срок воплотит вашу мечту в реальность.
Я в восторге от своего нового каркасного дома. Зимой было очень тепло, расходы на отопление минимальные. Летом в доме приятная прохлада. Очень грамотно все спроектировано и построено. Спасибо за ваш труд и за то, что подарили мне место, куда всегда хочется возвращаться.
Нева Белякова
08/25/2025
Спасибо за профессиональные консультации на всех этапах и помощь в выборе оптимального проекта, который идеально вписался в ландшафт нашего участка и полностью соответствует нашим представлениям о идеальном загородном отдыхе.
Доминика В.
05/06/2025
С момента обращения и до сдачи объекта чувствовал себя под надежным крылом, менеджер Александр подробно проконсультировал по всем вопросам, а строительная бригада работала быстро и без простоев, дом из профилированного бруса получился теплым и уютным, спасибо за профессионализм.
Болеслав
01/30/2025