Дома под ключ в Мурманске
Отзывы из Яндекс Карт
4.9
96 отзывов
Дополнительные услуги 88%
2 154 оценок
Комплектации 89%
1 535 оценок
Планировки 90%
2 484 оценок
Проекты 93%
2 231 оценок
С
Роза Черняева05/06/2025 г.
От всей души благодарю компанию за наш семейный очаг, дом построен просто на загляденье, в нём дышится так легко, а зимой было невероятно тепло и уютно, несмотря на морозы.
Отзывы из Google Карт
4.8
58 отзывов
Дополнительные услуги 88%
2 154 оценок
Комплектации 89%
1 535 оценок
Планировки 90%
2 484 оценок
Проекты 93%
2 231 оценок
С
Илья Трофимов07/18/2025 г.
Качество материалов на высоте, брус ровный и качественно высушенный, без синевы и прочих дефектов, что сразу говорит о серьезном подходе компании к выбору поставщиков пиломатериалов.
Отзывы из 2гис
4.9
31 отзывов
Дополнительные услуги 88%
2 154 оценок
Комплектации 89%
1 535 оценок
Планировки 90%
2 484 оценок
Проекты 93%
2 231 оценок
С
Азалия Е.02/11/2025 г.
Огромное спасибо за терпение и внимание к нашим многочисленным просьбам и пожеланиям в процессе строительства, менеджер Анна всегда была на связи и оперативно решала любые вопросы.


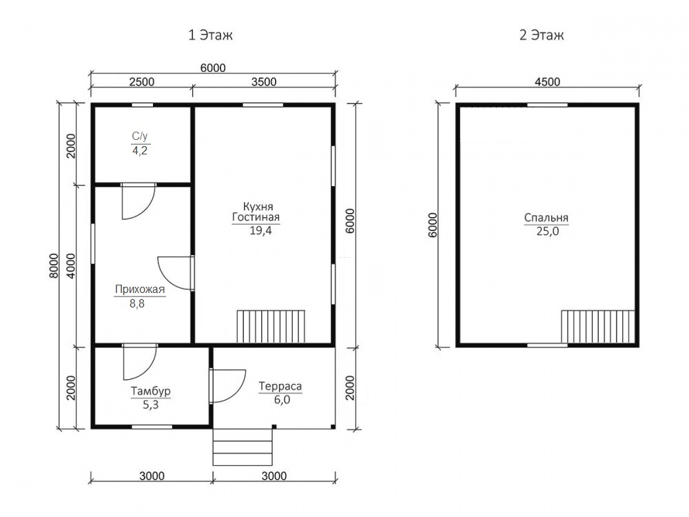
Проект №21 Дом с мансардой 6х8

каркас из строганой доски
Создайте свой план для этого проекта
и отправьте его нам на расчет в один клик.
Каркасный дом (150 мм) 6х8 Толщина утепления 150 мм 1781600 Заказать
Каркасный дом (200 мм) 6х8 Толщина утепления 200 мм 1951600 Заказать

Воспользуйтесь нашим планировщиком для того, чтобы подстроить под себя уже готовые проекты и получить личную планировку.

С использованием планировщика вы сможете сделать подходящие планы, чертежи, схемы, эскизы уникального дома с эркером, мансардой, с требуемым числом комнат. В результате вы сможете получить отличный проект, полностью отвечающий вашим потребностям.

При заказе дома можно подобрать тип кровли. Крышу можно сделать четырехскатной, двускатной и вальмовой. Двухскатная крыша считается самой востребованной в малометражных постройках.

Самые популярные размеры: мини - до 50 кв. М (как правило, 1 этажные); компактные - от 70 до 100 квадратных метров (обычно двухэтажные); большие - от 150 кв. М и свыше.

Предлагаем дуплексы - большие надежные каркасные дома с двумя входами, рассчитанные на несколько семей. Эти дома предполагаются для двух хозяев, они разделяются на две половины, для обоих половин - отдельный вход.


Наши работы

Перейти в галерею


Комплектация

Площадь застройки: 48 м2
Длина: 6 м
Ширина: 8 м
Общая площадь: 64.3 м2
Исполнение Под ключ (с отделкой)
Фундамент Свайно-винтовой или ж/б сваи (рассчитываются отдельно).
Гидроизоляция фундамента Рубероид в два слоя.
Основание (обвязка) Из обрезного бруса 150х150 мм. 150х200 мм. согласно выбранной толщине утепления. Торцевая доска строганая 45х145/45х195+/-5 мм. согласно выбранной толщине утепления. Обработка антисептиком.
Цокольное перекрытие Строганая доска камерной сушки 45х145/45х195+/-5 мм. с шагом 590 мм. Обработка антисептиком.
Пол черновой Обрезная доска камерной сушки 20х100 мм.
Влаго-ветрозащита чернового пола Мембрана Ондутис А100.
Внешние стены Стойки каркаса из строганой доски камерной сушки 45х145/45х195+/-5 мм. с шагом 590 мм. Верхняя двойная и нижняя обвязки из строганой доски камерной сушки 45х145/45х195+/-5 мм. Разгрузочный ригель из строганой доски 45х145+/-5 мм. Укосины из строганой доски 20х95 мм.
Перегородки Стойки каркаса из строганой доски камерной сушки 45х95+/-5 мм. с шагом 590 мм. Верхняя двойная и нижняя обвязки из строганой доски 45х95+/-5 мм. Разгрузочный ригель из строганой доски камерной сушки 45х145+/-5 мм. Укосины из строганой доски камерной сушки 20х95 мм.
Сборка каркаса На гвозди.
Высота от пола до потолка Дом одноэтажный: 2,5 м. Дом с мансардой: 1-ый этаж- 2,5 м.
2-ой этаж (мансарда)- 2,3 м.
Дом в полтора и два этажа:
1-ый этаж 2,5 м.
2-ой этаж 2,4 м. в полутораэтажном доме
2,5 м. в двухэтажном доме.
Внешняя отделка стен Имитация бруса камерной сушки, сорт АВ, толщиной 17 мм. Монтаж через строганый брусок камерной сушки 45х45+/-5 мм. (вентилируемый фасад). Влаго-ветрозащитная мембрана- Ондутис А100.
Внутренняя отделка стен, перегородок Евровагонка камерной сушки, сорт АВ, толщиной 12,5 мм. по строганой рейке 20х40+/-5 мм. либо ГКЛ 12,5 мм.
Отделка потолка Евровагонка камерной сушки, сорт АВ толщиной, 12,5 мм. по строганой рейке 20х40+/-5 мм. либо ГКЛ 12,5 мм.
Пол чистовой Шпунтованная доска камерной сушки толщиной 35-36 мм. сорт АВ. по строганой рейке 20х40+/-5 мм. либо шпунтованная ДСП 16 мм. по разряженной обрешётке из строганой доски камерной сушки 20х95+/-5 мм.
Утепление (пол, потолок) Минеральная вата Knauf 150/200 мм. согласно выбранной толщине утепления.
Утепление стен Плитный утеплитель Rockwool, толщиной 150/200 мм. согласно выбранной толщине утепления.
Звукоизоляция перегородок Плитный утеплитель Rockwool, толщиной 100 мм.
Пароизоляция (стены, перегородки, пол, потолок) Плёнка Ондутис R70. Дополнительная герметизация нахлёстов/примыканий пароизоляционной плёнки клейкой лентой Delta.
Окна Двухкамерные стеклопакеты ПВХ белого цвета, профиль 60 мм. В комплекте: отливы, подоконники, москитные сетки.
Двери Входная- металлическая, утеплённая (Россия). Межкомнатные- филёнчатые.
Наличники на окна и двери Наличник деревянный, строганый, камерной сушки 70-90 мм. с двух сторон.
Лестница (при наличии второго этажа) Деревянная, одно или двухмаршевая. Перила- заводские резные, балясины- заводские точеные, устанавливаются стартовые точёные столбы. Ступени 40х200 мм. Тетива лестницы- 90х140 мм.
Крыша Двускатная, ломаная или вальмовая в соответствии с проектом.
Стропильная система Выполнена из строганой доски камерной сушки 45х145/45х195+/-5 мм. Шаг установки стропил 590 мм.
Обрешётка Выполняется из строганой доски камерной сушки толщиной 20х95+/-5 мм. Шаг крепления обрешетки 350 мм. Контробрешётка выполняется из строганого бруска камерной сушки 45х45+/-5 мм. Крепится по стропилам (вентиляционный зазор).
Подкровельная мембрана Ондутис А100
Кровельное покрытие (на выбор) Металлочерепица 0,45 мм. Цвет на выбор.
Фронтоны (при наличии) Каркас из строганой доски камерной сушки 45х145/45х195+/-5 мм. Обшиваются имитацией бруса камерной сушки, сорт АВ, толщиной 17 мм. Монтаж через строганый брусок камерной сушки 45х45+/-5 мм. (вентилируемый фасад). Влаго-ветрозащитная мембрана- Ондутис А100. Монтаж вентиляционных решёток.
Свесы крыши Ширина 400 мм. Подшиваются вагонкой камерной сушки, сорт АВ.
Терраса/балкон (при наличии) Устанавливаются опорные столбы из строганного бруса камерной сушки 140х140 мм.
Отделка потолка террасы/балкона Евровагонка камерной сушки толщиной 12,5 мм. сорт АВ.
Пол террасы/балкона Шпунтованная доска камерной сушки толщиной 35-36 мм. сорт АВ.
Ограждение террасы/балкона Перила- строганая доска. Балясины- точеные, фигурные. Либо ограждение в скандинавском стиле. Устанавливаются ступени у входа.
Допуск на геометрические параметры Составляет +/- 50 мм по длине с каждой стороны.
Допускается стыковка имитации бруса, вагонки и половой доски По всему периметру стен дома (если ширина и длина дома более 6,0 метров). Вагонки и доски пола в каждой отдельной комнате.
Допуски по имитации бруса, вагонке, доске +/- 5 мм.
В стоимость включена Доставка комплекта материала в радиусе 500 км. от г. Пестова Новгородской области и сборка дома на вашем участке.
Гарантия 5 лет.
Бытовка строительная 2,0х3,0 м. каркасно-щитовая. Стоимость 23000 руб. Остаётся на участке Заказчика.
Туалет 1,0х1,0 м. каркасно-щитовой. Стоимость 12000 руб. Остаётся на участке Заказчика.
Генератор Стоимость аренды на весь срок строительства 15000 руб. ГСМ за счёт Заказчика.

Строительство каркасного дома осуществляется в двух видах: под ключ и под усадку, когда дом отстаивается некоторое время.

В мороз желательно строить дом в холодную погоду, чтобы каркас не промок, летом - не в дождливую.

Подходящими для сада или дачи являются дома на винтовых сваях, на нашем сайте вы увидите одноэтажные и полуторатажные варианты.

В том случае если дом будет строиться для постоянного проживания, рекомендуем теплые и надежные дома на плитных и ленточных фундаментах.

Существует 2 размера утепления: 200 мм и 150 мм. Каркасные дома с утеплителем 150 миллиметров получаются дешевле, но не такими теплыми.

Дополнительные услуги


Проект дома 21 с общей площадью 64.3 кв.м. и размером фундамента 6х8 м.. Внутри этого полутораэтажного уютного дома расположилась всё, что нужно для комфортного проживания или загородного отдыха.

Окна выполнены в зимнем двойном варианте, что позволяет использовать дом и в зимнее время, и в холодное межсезонье, и жарким летом.

Высота потолков в доме составляет 2,45 м.
двускатная крыша с покрытием из ондулина может быть любого цвета – зеленый, красный, коричневый – на ваш выбор.

Компания «Дача из бруса» с успехом построит дачный дом в Мурманске по данному проекту без затрат нервов и вашего времени. Заранее оговоренная стоимость и четкое выполнение сроков работ нашими специалистами дают уверенность в успехе строительства. Закажите дом с уже сегодня!


Популярные проекты


Одноэтажные каркасные дома Каркасные дома 6х4 Бани из бруса 6х9
хит продаж
Тип: с маленькой террасой
Общая площадь: 2
1860100
от 1771600
хит продаж
Тип: с большой террасой
Общая площадь: 2
2952100
от 2811600
хит продаж
Тип: с большой террасой
Общая площадь: 2
2269600
от 2161600
Дома из бруса

Заказать или задать вопрос



Заказать или задать вопрос

Заказать звонок